SELECTED PROJECTS
ES S'ESTADORS
Town House with garden in the heart of Son Servera
Discover a contemporary and serene home in the very heart of Son Servera, overlooking a charming square that provides a sense of openness, calm, and natural light throughout the day. A house that blends Mediterranean aesthetics, natural design, and outdoor spaces that invite a slower, more relaxed way of living.
Furniture is not included in the sale price. Nevertheless, the future owner may have the opportunity to acquire the thoughtfully selected interior design and furnishings created by Omega Living Home Staging S.L., subject to separate negotiation.
Discover a contemporary and serene home in the very heart of Son Servera, overlooking a charming square that provides a sense of openness, calm, and natural light throughout the day. A house that blends Mediterranean aesthetics, natural design, and outdoor spaces that invite a slower, more relaxed way of living.
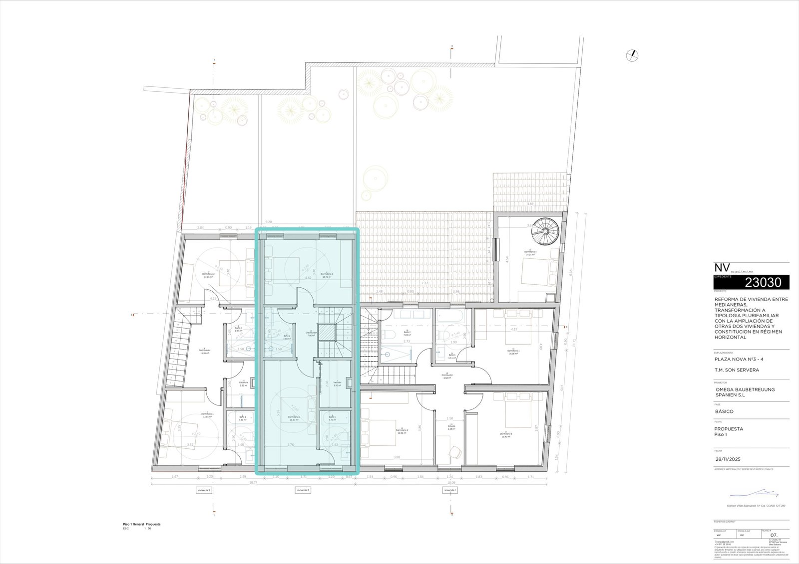
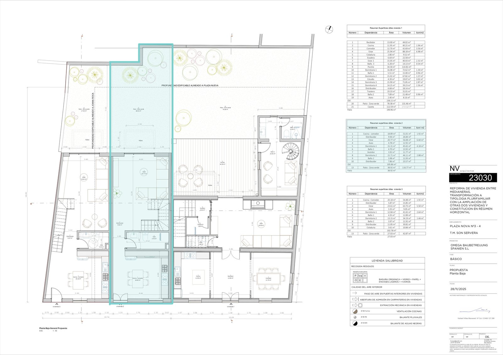
With 140 m² of built area on a 101 m² plot, this property offers a comfortable, balanced, and practical lifestyle, distributed over just two floors for optimal functionality. The two levels provide approximately 103 m² of usable living space, laid out as follows:
Ground floor – Day area (approx. 54 m²)
Bright living room with direct access to the terrace and garden, creating a seamless connection between indoor and outdoor spaces.
Spacious, warm living area with soft, clean lines.
Bright and functional kitchen, ideal for integration into an open-plan layout if desired.
Guest toilet.
First floor – Rest area (approx. 49 m²)
Exterior master bedroom with en-suite bathroom, designed as a private retreat.
Second exterior bedroom with access to the second full bathroom on this floor.
Additional space intended for a laundry room or storage room.
Only the kitchen is included in the price.
Exterior – Private terrace and garden (27.03 m²)
The outdoor area is one of the home’s main highlights: a spacious terrace, a private garden, and multiple possibilities for creating relaxation areas, an outdoor dining space, or Mediterranean landscaping.
This is a home for those seeking light, calm, and thoughtful design. A perfect place to enjoy an authentic Mediterranean lifestyle, with open spaces, customization options, and a charming setting. A property ready to become your next home.
The house is equipped with modern technology and comfort features, including its own individual electric heating system and air conditioning.
This is a unique opportunity in Son Servera for those looking for a fully renovated, modern, efficient home, ready to move into, in an authentic and peaceful area of northeast Mallorca.
Contact us for more information or to arrange a viewing of the project.
At Omega Homes – “We transform spaces, awaken emotions, and turn each property into an asset with soul and unique potential.”
TOWN HOUSE
Location: Son Servera
Built Area: 140 m2
Plot size: 101 M2
Year: 2026 – Building
Price: 550.000€
get in touch
